Leafy City Program 2026

trees in street
Published on: Tuesday, 27 January 2026
News type:
Suburb:

Creating greener, cooler, and more comfortable neighbourhoods for everyone. The City of Joondalup Leafy City Program provides increased urban canopy cover by planting trees within the City’s suburban streetscapes, to create cooler, inviting green urban spaces for residents and mitigate the increasing heat-island effect.

The Leafy City Program launched in May 2017 and to date, over 6,800 new trees have been added to the urban canopy among the City’s neighbourhoods.

Where will the next program roll out

During the next stage of the Leafy City Program, almost 1,000 trees will be planted across the suburbs of Beldon and Heathridge. These suburbs have been identified as some of the hottest within the City, presenting a strong opportunity to increase tree canopy coverage and improve shade over time. Both suburbs previously formed part of the Leafy City Program in 2017. This next stage focuses on targeted infill planting to address gaps that have emerged over time due to natural attrition, pests, or disease, where a small number of trees will need to be removed, along with the inclusion of a small number of additional streets to build on existing canopy coverage. The planting of new street trees will provide the same amenity, health, and cooling benefits already experienced in surrounding streets throughout Beldon and Heathridge.

The selected streets receiving Leafy City Program trees in 2026 are located within Beldon and Heathridge.

Beldon:

Bellanger DriveBerkshire DriveCraigie DriveDawson StreetEmperor AvenueGunter Grove
Haddington Street Priscilla AvenueRadian RoadSandalford DriveLateral LoopLeander Street 
Tasman RoadGradient WayEnsign WayEddystone AvenueGwendoline DrivePacific Way

Heathridge:

Admiral Grove Caridean Street Poseidon Road Balanus WayChannel Drive
Mermaid WayPeninsula AvenueFlotilla DriveSail TerraceVoyage Drive

Tree species

Species selection has been supported by the advice and planning of the City’s arborist, landscape architects and civil engineers. An assessment was undertaken to investigate the existing site conditions each area to inform tree species selection for the suburb. Considerations included:

  • Existing soil and weather conditions.
  • Existing infrastructure and services.
  • Water availability.
  • Existing tree canopy in the area.
  • Polyphagous Shot-hole Borer (PSHB) considerations.

These investigations and appropriate tree species selection for the suburb will ensure the healthy development and longevity of the City’s leafy canopy.

Leafy City Program mapping tool

How to use the Leafy City Program mapping tool:

1.    Scroll to your desired location or use the + and – tools in the top left-hand corner. 
2.    Click on one of the green icons that represent a proposed Leafy City Tree to be planted.
3.    A popup will then allow you to see the address, species and design considerations for each proposed tree.

Design considerations that have been referenced are as follows:

  • Tree species / common name: See above for factors that contributed to selection of species for each street.
  • HOA: location of tree is within a Housing Opportunity Area and subject to future development considerations. 
  • Overhead Power: species has been modified to allow for overhead powerlines and may differ from other species in the street.
  • Underground services near: location of tree is heavily constrained by nearby underground services.
  • Intersection sightlines considerations: location of tree has been reviewed by City Officers and may have been moved into this location to assist with intersection sightlines. 

While some flexibility exists with the tree placement shown, any proposed variation to the identified tree planting location will need to be in line with the above considerations. Important note: The City of Joondalup accepts no responsibility whatsoever for the accuracy or otherwise of any information within this application, due to the constraints of aerial photography. It is anticipated that this page will be updated as regularly as possible to provide the latest and most accurate information available. However, some information may not be current. Viewers must take account of these facts when reading the data. 

When will the program roll out

The next round of tree planting will occur between May through to August 2026. Preparation works on properties with hardstand verge surfaces will commence in February 2026. Residents will be informed prior to works commencing in their areas, and the City aims to work together with local residents to help create cooler inviting green urban spaces to live in for everyone.

Please refer to the attachments below for additional information relating to the Leafy City Program.

For further information on the Leafy City Program please contact the City’s Customer Care Team on 9400 4000 or by info@joondalup.wa.gov.au

If your street is not included in the Leafy City Program for 2026 and you would like a tree planted to your verge, please visit City's street tree planting  for more information.

Tree information

Common name: Willow myrtle or Peppermint tree

Botanical Name: Agonis flexuosa

Origin: Endemic to moist, sandy coastal areas of south west Western Australia.

Description: Elegant medium evergreen tree with a dense, domed shaped, weeping habitat. Within a streetscape environment the tree can grow up to 10 metres high by 10 metres wide. It has fibrous brown bark with long narrow dull-green leaves. Clusters of small, white, five petalled flowers are produced from spring to summer.

Common name: Willow bottlebrush

Botanical name: Callistemon salignus (syn. Melaleuca salicina)

Origin: Native to coastal lowlands of central NSW and QLD

Description: Hardy evergreen small tree with bright green foliage that features attractive flushes of pink growth. Is an excellent street tree and is salt-tolerant, thriving in a range of conditions to a height of 8 metres. The tree has bark that is more typical of paperbark species. It produces creamy white bottlebrush flowers during spring and summer.

Common name: Weeping bottlebrush

Botanical name: Callistemon viminalis

Origin: Coastal areas of New South Wales and Queensland.

Description: An evergreen, small, upright tree with a weeping habit. The tree develops a rounded, compact canopy and can grow up to 5 metres high by 3 metres wide. An abundance of brilliant red bottle-brush like flowers are produced from spring through summer. The flowers attract many native and non-native birds.

 

Common name: Dwarf yellow bloodwood

Botanical name: Corymbia eximia ''Nana'

Origin: Central coastal and subcoastal New South Wales

Description: Dwarf version of the parent species C. exima. Attractive evergreen tree with a dense broad canopy and gnarled trunk. It can grow up to 8 metres high by 6m wide. The tree has yellow-brown scaly bark and thick sickle-shaped bluish, grey-green leaves. It produces decorative clusters of large creamy flowers in spring which provide food for nectar feeding birds and insects.

Common name: Spotted gum

Botanical name: Corymbia maculata

Origin: Widespread on coastal sandy areas within Queensland, the New South Wales coast and limited areas within Victoria.

Description: A tall, vigorous evergreen with a fairly dense and broad canopy. The tree is characterised by a long, slender, smooth barked trunk that is spotted with purple, cream and grey colours. The tree can grow up to 15 metres high. From winter to spring small, white flowers are produced followed by urn shaped nuts. The flowers have a slight honey fragrance that attracts birds and insects.

Common name: Tuckeroo, carrotwood, beach tamarind or green-leaved tamarind

Botanical name: Cupaniopsis anacardioides

Origin: Native to coastal regions and littoral rainforests of Queensland, NSW and northern Australia.

Description: Medium tree with a spreading canopy and glossy green large leaves. Within a streetscape environment the tree can grow between 8 - 12 metres high. The tree has smooth grey-brown bark with raised horizontal lines and produces yellow-green flowers in spring followed by decorative orange-yellow seed pods in summer.

Common name: Dwarf sugar gum

Botanical name: Eucalyptus cladocalyx 'Nana'

Origin: Native to Western Australia and South Australia.

Description: Small to medium tree with a rounded canopy and shiny dark green foliage. Within a streetscape environment the tree can grow between 8 – 10 metres high. The tree has mottled grey bark and produces clusters of creamy white flowers in late summer.

Common name: Tuart

Botanical name: Eucalyptus gomphocephala

Origin: Native to south west Western Australia.

Description: Elegant medium to large evergreen tree with a fairly dense canopy. Within a streetscape environment the tree will generally be smaller and can grow up to 15 metres high. The tree has rough, greyish, box–like bark that extends the length of the trunk to small twigs. Showy white feather-like flowers appear in mid-summer to mid autumn. Mature trees provide habitats for many native fauna.

Common name: Yellow gum

Botanical name: Eucalyptus leucoxylon ssp. megalocarpa

Origin: Open forests and woodlands throughout Western Victoria, Brisbane Ranges and coastal South Australia.

Description: Small to medium sized, evergreen tree with a straight trunk and attractive bark. As the tree matures, a rounded, dense canopy is developed. It can grow up to 12 metres high and 10 metres wide in an urban streetscape. Showy red to pink flowers are produced in autumn through winter, which attracts birds and insects. After flowering bell shaped seed capsules are formed.

Common name: Swamp mallet, narrow leaved gimlet or swamp gimlet

Botanical name: Eucalyptus spathulata

Origin: Southern and central Wheatbelt regions of south-western Western Australia

Description: Medium sized tree with long, grey-green tapered leaves which form a good shade canopy. Within a streetscape environment the tree can grow between 5 -12 metres high. The tree has satin-like, grey-brown bark and produces cream flowers from winter to summer.

Common name: Coral gum

Botanical name: Eucalyptus torquata

Origin: Shallow rocky inland areas of south west of Western Australia from Coolgardie to Norseman.

Description
Highly ornamental, small evergreen tree with a spreading canopy. The tree grows between 4 metres and 8 - 10 metres high. The tree has rough flaky grey-black bark and grey-green leaves. The developing flowers are covered by decorative horned red caps. A prolific display of coral red to pink flowers are produced through spring and summer.

Common name: Broad-leaved paperbark or red flowering paperbark

Botanical name: Melaleuca viridiflora

Origin: Occurs naturally in Western Australia, Northern Territory and northern Queensland.

Description: Small ornamental tree with upright growth. Within a streetscape environment the tree can grow to 5 - 7 metres high. The tree has papery, light bark and striking bottlebrush flowers which appear in autumn providing a food source for nectar feeding birds.

Common name : Snow pear

Botanical name: Pyrus nivalis

Origin: Southeastern Europe to western Asia

Description: A Small-medium deciduous tree with an upright growth habit. It has dense, rounded canopy with silvery-green foliage in Spring and Summer, before the turning bright red for a stunning Autumn display. After dormancy, it will be covered in a prolific show of white flowers. Within a streetscape environment the tree can grow 8 - 10 metres high. The tree produces small ornamental fruits however they can be quite sour.

Leafy City Program FAQ's

To provide the City of Joondalup with increased leafy canopy cover through street tree planting in order to mitigate the environmental impact of climate change and rapid urban growth.

Street trees are an important natural asset that helps maintain liveable urban environments and provide a wide range of environmental, aesthetic, economic and social benefits to the community. Increasing canopy cover throughout the City will create cooler, inviting green urban spaces that will improve the comfort of pedestrian movement and reduce the ‘urban heat island’ effect generated by existing hardstand and roadway surfaces.

There are many benefits to increasing the urban canopy with street trees.
Some include:

  • Reducing ambient air temperature.
  • Reducing cooling energy consumption costs.
  • Providing habitats for wildlife.
  • Improving visual street amenity.
  • Creating safer, cooler environments.
  • Saving water through reduced evaporation rates.
  • Cleaning the air by absorbing polluting gases and producing oxygen.
  •  Improving the mental health and well-being of residents.

In March 2020, canopy cover and land surface temperature data were independently captured and used to prioritise project sites, which were identified as ‘hot spots’. To view the canopy cover and land surface temperature maps, please visit the City’s website. Additional considerations on site selection include potential impacts on Housing opportunity areas and existing infrastructure and services.

An assessment was undertaken to investigate the existing site conditions in each area to inform tree species selection for the suburb. Considerations included:

  • Existing soil and weather conditions
  • existing infrastructure and services
  • water availability, and
  • existing tree canopy in the area.

These investigations and the appropriate tree species selection for the suburb will ensure the healthy development and longevity of the City’s leafy canopy.

 

The project sites for 2026 are selected streets in Beldon and Heathridge. At least two weeks prior to the installation date, the proposed location of the tree will be marked on-site, including locations featuring existing ‘hardstand’ surfaces, such as brick paving, concrete, or synthetic turf.

The next round of tree planting will commence in May 2026 and will progress through to August 2026. Preparation works on properties with hardstand verge surfaces will commence in March 2026.

The Leafy City Program forms part of the City’s Capital Works Program.

The City is responsible for maintaining street trees. To ensure the best chance of establishment, trees are planted in the wetter, cooler months. The City will also provide establishment support, including watering, formative pruning, weeding and fertilising over the first two summers.

If you are concerned about the health of your street tree, contact the City’s Customer Care Team on 9400 4000.

If you are willing and able to help ensure your tree grows healthy and strong, you can provide an additional deep weekly watering during the summer months to reduce heat stress and ensure water is reaching its roots. Also keep the tree trunk free of weeds and grass to reduce moisture loss and competition. Each new tree will come with an information tag attached.

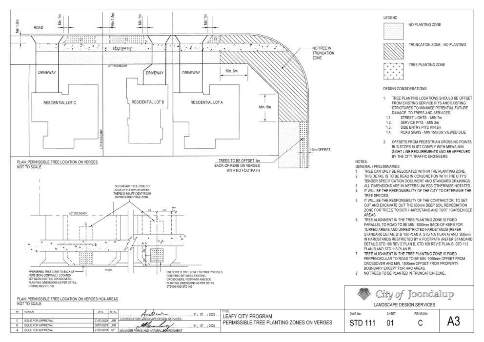
Preparation works on properties with hardstand verge surfaces will commence in March 2026. Approximately two weeks prior to the installation date, the proposed location of the tree will be marked on site. This will give residents the opportunity to remove any plants they would like to keep.

  • On planted verges, turf and plants will be removed to allow for a 1.2m x 1.2m tree planting area.
  • On ‘hardstand’ verges, paving/synthetic turf/concrete will be cut to form a tidy 2m x 2m square tree planting area.

Appropriate tree planting locations have been identified based on:

  • Underground service locations
  • traffic sightlines
  • prescribed offsets to the footpath/property boundary/kerbs
  • pedestrian thoroughfare
  • future property development considerations (HOA Areas only)
  • the overall alignment of trees to be planted in the street.

While some flexibility exists with the tree placement, any proposed variation to the identified tree planting location will need to be in line with the above considerations. Please visit joondalup.wa.gov.au or contact the City’s Customer Care team on 9400 4000 or email info@joondalup.wa.gov.au for more information on tree positioning options.

Unfortunately, the supply of alternative tree species is not possible at this time. Tree species have been selected by the City’s arborist, landscape architects and civil engineers. The selected tree for your street has been chosen based on several factors specific to your area, as noted above, and alternative species may not be viable. Additionally, the Leafy City Program is required to source the selected tree species with enough lead time to allow growth to an appropriate maturity for viable planting, approximately 12 months in advance. This means that there is a limited tree stock of each species during the planting phase of the program.

The trees will not be planted on private property. All trees will be planted on the verge, which is part of the road reserve.

The tree will therefore be located on Crown Land as a City-owned and managed asset, and not the responsibility of the owner/occupier of the adjacent property.

The City aims to work together with local residents to help create cooler, inviting green urban spaces to live in for everyone. Please visit joondalup.wa.gov.au to view the Street Verge Guidelines for more information.

During this next stage of the Leafy City Program, almost 1,000 trees will be planted in the suburbs of Beldon and Heathridge. These suburbs have previously been a part of the Leafy City Program in 2017, when at the time Housing Opportunity Areas (HOA) were not able to be included in the program, but will now be incorporated for the first time in 2026. The website contains several standard drawings showing how the Leafy City Program will plant trees on the verges of undeveloped lots within HOA areas.

To prevent the spread of Polyphagous Shot Hole Borer (PSHB), the City has reviewed the species for use within the Leafy City Program. Selective tree species will no longer be available as part of the City’s tree planting programs, including the Leafy City Program. This beetle is highly invasive and attacks a wide range of plant species, with over 500 documented globally to have been affected.

Under the Transition to Management phase announced by DPIRD and commenced on 1 July 2025, the City will continue investigating strategies to slow the spread of PSHB, including management planning, surveillance and monitoring, compliance, and tree treatment. The City encourages the community to use the My Pest Guide to report suspected sightings.

For further information, please visit the City’s website, or contact the City’s Customer Care team on 9400 4000 or email info@joondalup.wa.gov.au

Share this page
Print this page
Back to top of the page